Mieszkanie na sprzedaż Białystok, Sienkiewicza, Henryka Sienkiewicza

3 pokoje
55.90 m²
13 220,04 zł/m2
4 piętro
CEN-MS-2853
Oblicz ratę kredytu

739 000 zł

Mieszkanie na sprzedaż
Oferta na wyłączność

Szczegóły oferty

Symbol oferty CEN-MS-2853
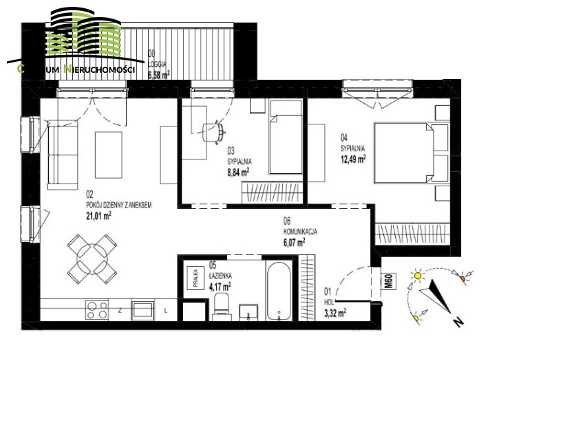
Powierzchnia 55,90 m²
Powierzchnia użytkowa [m2] 55,90 m²
Powierzchnia balkonów/tarasów 6,58 m²
Liczba pokoi 3
Liczba sypialni 2
Rodzaj budynku apartamentowiec
Technologia budowlana beton, cegła
Standard
Opłaty w czynszu ogrzewanie, fundusz remontowy, sprzątanie, administracja, CO, zaliczka na fundusz remontowy, wywóz nieczystości, woda ciepła, Winda
Piętro 4
Liczba pięter w budynku 4
Garaż miejsce postojowe
Stan lokalu deweloperski
Okna PCV 3 szyby, ciepły montaż
Instalacje nowe
Balkon duży
Liczba balkonów 1
Rok budowy 2027
Widok na inne budynki
Gaz brak
Woda jest
Dojazd ASFALTOWA
Otoczenie centrum miasta
Ogrzewanie C.O. miejskie
Odległość do komunikacji publicznej [m] 100 m
Odl. do sklepu [m] 100 m
Odl. do szkoły [m] 100 m
Odl. do przedszkola [m] 100 m
Winda tak
Liczba wind 2
piwnica tak, 2,53 m²
Pomieszczenia
Powierzchnia pokoi 8,84/12,49 m2
Podłogi pokoi wylewka
Typ kuchni bez zabudowy
Rodzaj kuchni aneks kuchenny - połączony z salonem
Powierzchnia kuchni 21 m2
Podłoga kuchni wylewka
Typ łazienki do remontu
Liczba łazienek 1
Powierzchnia łazienki [m2] 4,17 m2
Glazura łazienki bez glazury
Podłoga łazienki wylewka
Liczba przedpokoi 1
Powierzchnia przedpokoi 6,07 m2
Podłoga przedpokoi wylewka
Wojciech

Wojciech

Doradca ds. nieruchomości (agent)

Napisz wiadomość 55 Ofert

Opis nieruchomości

Na sprzedaż nowoczesne, 3-pokojowe mieszkanie w stanie deweloperskim, zlokalizowane w Białymstoku przy ul. Sienkiewicza, w nowo budowanej inwestycji Nowela Sienkiewicza, w części apartamentowej budynku. Termin zakończenia realizacji inwestycji planowany jest na luty 2027 roku.

Mieszkanie o powierzchni 56 m² usytuowane jest na 4., ostatnim piętrze budynku. Lokal jest bardzo dobrze nasłoneczniony, z południową ekspozycją okien oraz dużym balkonem o powierzchni 6,6 m². Układ mieszkania obejmuje dwie sypialnie oraz przestronny pokój dzienny z aneksem kuchennym. Mieszkanie znajduje się w nowej części budynku, a okna wychodzą na cichą i zaciszną stronę, co zapewnia komfort i spokój mimo centralnej lokalizacji.

Inwestycja charakteryzuje się bardzo dobrą lokalizacją – w pobliżu centrum miasta, licznych sklepów i punktów usługowych oraz przystanków komunikacji miejskiej, co zapewnia szybki i wygodny dojazd do pozostałych części miasta.

Cena mieszkania wynosi 739 000 zł.
Do lokalu przynależy komórka lokatorska o powierzchni 2,5 m² w cenie 9 000 zł.
Miejsce postojowe w cenie 50 000 zł.

tel. 531 790 133

Kalkulatory

Kalkulator kredytowy

Wysokość raty

PLN
%

Kalkulator kosztów

Podatek od czynności cywilno-prawnych

Taksa notarialna
(opłata notarialna)

Wniosek o wpis do WKW

VAT od prowizji
agencji nieruchomości

Vat od taksy notarialnej
(opłaty notarialnej)

Prowizja agencji nieruchomości

Wypisy aktu notarialnego

Razem

Uwaga: mogą wystąpić dodatkowe opłaty za założenie księgi wieczystej oraz ustanowienie hipoteki.

PLN
PLN
PLN
PLN
PLN
PLN
%
PLN

Podobne oferty

Mieszkanie na sprzedaż

Białystok, Sienkiewicza

3 pokoje 64 m2 8 524,84 zł/m2
Nowa oferta

Mieszkanie na sprzedaż

Białystok, Sienkiewicza

3 pokoje 47 m2 14 946,24 zł/m2
Nowa oferta

Doradca ds. nieruchomości (agent)

Proszę wprowadzić poprawne imię i nazwisko
Proszę wprowadzić poprawny numer telefonu
Proszę wprowadzić poprawny adres e-mail
Proszę zaznaczyć wymagane zgody
Rozwiąż równanie:
26 7
Niepoprawny wynik