Działka na sprzedaż Supraśl (gw), Ogrodniczki, Nowodworska

4124.00 m²
420,00 zł/m2
CEN-GS-2827
Oblicz ratę kredytu

1 732 080 zł

Działka na sprzedaż

Szczegóły oferty

Symbol oferty CEN-GS-2827
Powierzchnia 4 124,00 m²
Standard
Opłaty w czynszu administracja
Wymiary działki 78x59 m
Zagosp. działki niezagospodarowana
Ukształtowanie działki płaska
Kształt działki prostokąt
Ogrodzenie działki brak
Gaz w drodze dojazdowej
Woda w ulicy
Dojazd droga gruntowa
Otoczenie działki zabudowane
Odległość do komunikacji publicznej [m] 350 m
Odl. do sklepu [m] 150 m
Odl. do szkoły [m] 400 m
Odl. do przedszkola [m] 400 m
Położenie obrzeża miasta
Prąd w ulicy
Kanalizacja w ulicy
Pomieszczenia
Wojciech

Wojciech

Doradca ds. nieruchomości (agent)

Napisz wiadomość 54 Ofert

Opis nieruchomości

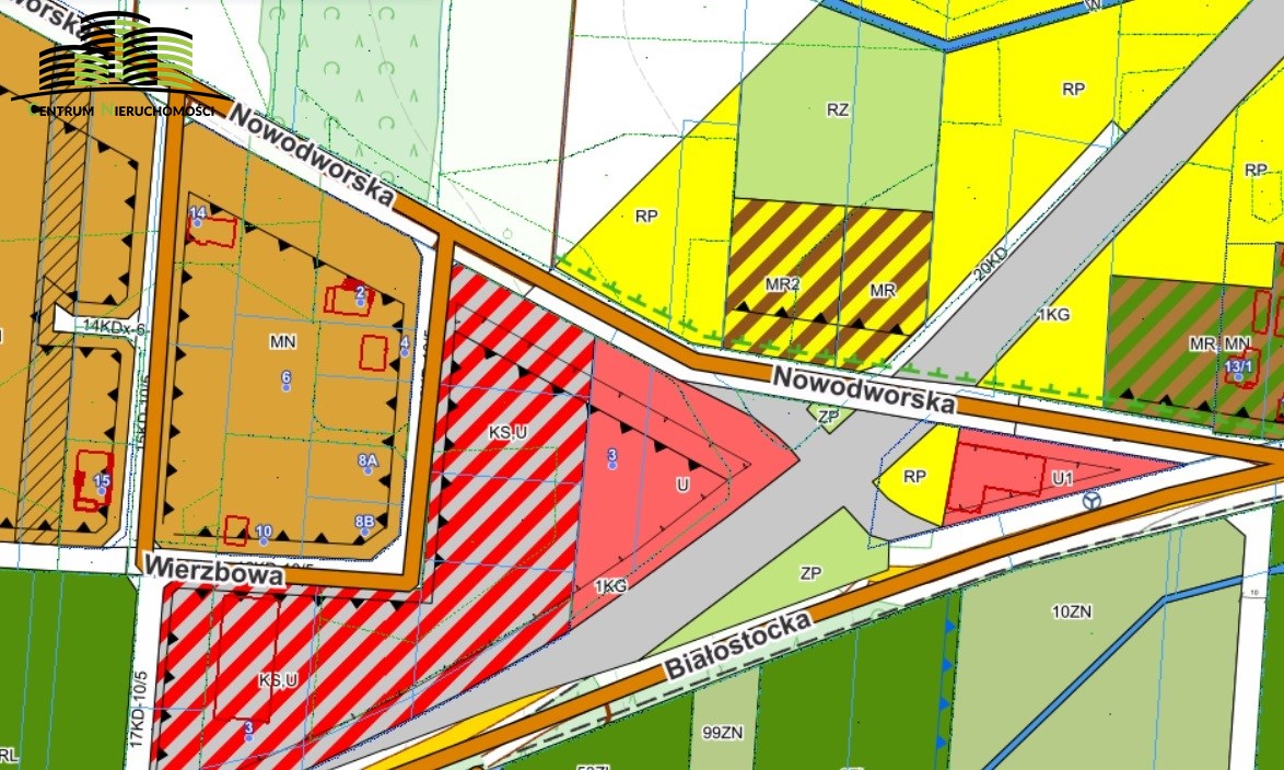
Na sprzedaż dwie działki inwestycyjne – Ogrodniczki, gm. Supraśl
Na sprzedaż dwie przyległe działki o łącznej powierzchni 4124 m², położone w miejscowości Ogrodniczki, gmina Supraśl.
Wymiary łączne: ok. 78 m x 59 m
Obręb: Ogrodniczki
MPZP: teren objęty miejscowym planem zagospodarowania przestrzennego
Przeznaczenie terenu:
KS – tereny obsługi komunikacji:
stacja paliw, obsługa techniczna pojazdów, motel oraz obiekty i urządzenia towarzyszące.
U – tereny usługowe:
handel, rzemiosło, usługi nieuciążliwe dla otoczenia, z możliwością łączenia funkcji usługowej z mieszkaniową 
Atuty nieruchomości:

  • korzystne położenie przy drodze o dużym natężeniu ruchu, idealne pod działalność usługowo-handlową lub stację paliw,
  • teren objęty MPZP – brak konieczności uzyskiwania warunków zabudowy,
  • działki posiadają pełne uzbrojenie terenu – dostępne są wszystkie niezbędne media: prąd, woda, kanalizacja oraz gaz.
  • kształtne, ustawne działki o dogodnych wymiarach,
  • szybki dojazd do Białegostoku, Wasilkowa i Supraśla.
Powierzchnia łączna: 4124 m²
Działki sprzedawane razem.
Idealna propozycja dla inwestora poszukującego gruntu pod działalność usługową, handlową lub inwestycję z funkcją mieszkaniową.

tel. 531 790 133

Kalkulatory

Kalkulator kredytowy

Wysokość raty

PLN
%

Kalkulator kosztów

Podatek od czynności cywilno-prawnych

Taksa notarialna
(opłata notarialna)

Wniosek o wpis do WKW

VAT od prowizji
agencji nieruchomości

Vat od taksy notarialnej
(opłaty notarialnej)

Prowizja agencji nieruchomości

Wypisy aktu notarialnego

Razem

Uwaga: mogą wystąpić dodatkowe opłaty za założenie księgi wieczystej oraz ustanowienie hipoteki.

PLN
PLN
PLN
PLN
PLN
PLN
%
PLN

Doradca ds. nieruchomości (agent)

Proszę wprowadzić poprawne imię i nazwisko
Proszę wprowadzić poprawny numer telefonu
Proszę wprowadzić poprawny adres e-mail
Proszę zaznaczyć wymagane zgody
Rozwiąż równanie:
17 5
Niepoprawny wynik