Dom na sprzedaż Zabłudów (gw), Kuriany

5 pokoi
127.00 m²
5 669,29 zł/m2
CEN-DS-2848
Oblicz ratę kredytu

720 000 zł

Dom na sprzedaż
Nowa oferta

Szczegóły oferty

Symbol oferty CEN-DS-2848
Powierzchnia 127,00 m²
Powierzchnia działki [m2] 634 m²
Liczba pokoi 5
Liczba sypialni 4
Rodzaj domu bliźniak
Technologia budowlana pustak ceramiczny
Standard
Liczba pięter w budynku 2
Wymiary działki 20x31 m
Garaż garaż
Okna PCV 3 szyby, ciepły montaż
Instalacje nowe
Balkon jest
Liczba balkonów 2
Liczba tarasów 1
Zagosp. działki niezagospodarowana
Ukształtowanie działki płaska
Kształt działki kwadrat
Pokrycie dachu blacha
Pozwolenie na użytkowanie vir_pozwolenienauzytkowanie_brak
Stan budynku do wykończenia
Ogrodzenie działki brak
Rok budowy 2025
Gaz jest
Woda jest
Dojazd droga gruntowa
Otoczenie działki zabudowane
Odległość do komunikacji publicznej [m] 200 m
Odl. do sklepu [m] 450 m
Odl. do szkoły [m] 1 000 m
Odl. do przedszkola [m] 1 000 m
Tarasy taras duży
Prąd jest
Kanalizacja brak
Pomieszczenia
Powierzchnia pokoi 11,47 m², 11,35 m², 13,64 m², 9,71 m² m2
Podłogi pokoi wylewka
Typ kuchni jasna z oknem
Rodzaj kuchni oddzielna
Powierzchnia kuchni 7,07 m2
Podłoga kuchni wylewka
Typ łazienki nowa
Liczba łazienek 2
Powierzchnia łazienki [m2] 9 m2
Glazura łazienki bez glazury
Podłoga łazienki wylewka
Liczba WC 2
Liczba przedpokoi 2
Powierzchnia przedpokoi 15 m2
Podłoga przedpokoi wylewka
Wojciech

Wojciech

Doradca ds. nieruchomości (agent)

Napisz wiadomość 47 Ofert

Opis nieruchomości

Na sprzedaż – bliźniak w Kurianach, 127 m², działka 634 m² 

Przestronny bliźniak w cichej i malowniczej okolicy Kurian, zaledwie 1 km od granicy z Białymstokiem. Dom idealny dla osób szukających komfortowego miejsca do zamieszkania w spokojnym otoczeniu, z szybkim dojazdem do miasta.

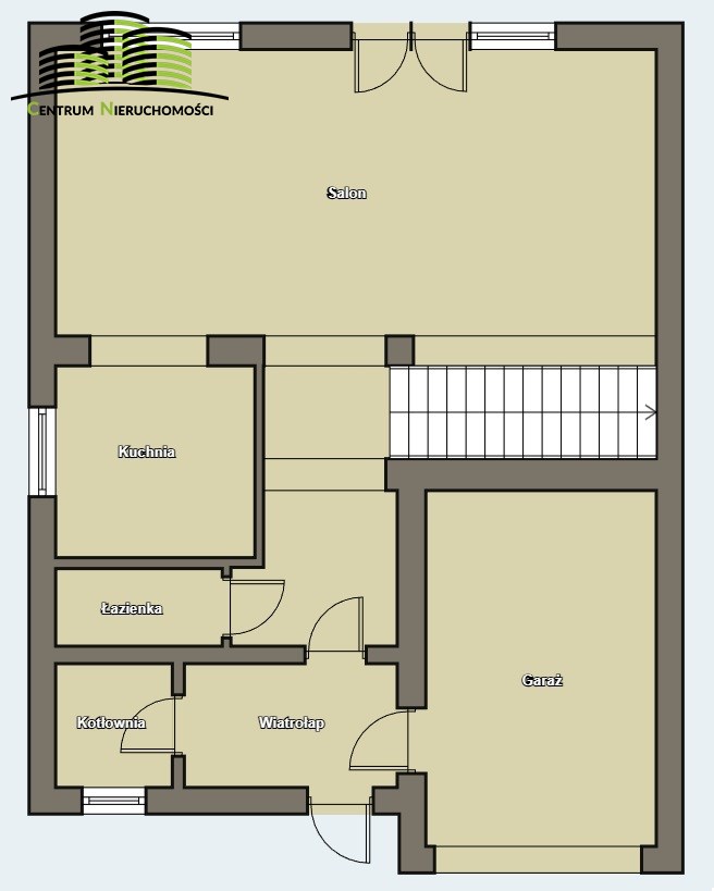
Układ pomieszczeń:
Parter: salon z jadalnią 22,23 m², aneks kuchenny 7,07 m², kotłownia 2,5 m², garaż 16,02 m², łazienka 3,28 m², hol 9,09 m²
Piętro: 4 sypialnie, łazienka 5,56 m², korytarz 5,88 m²

Standard i instalacje:

  • Dom w stanie surowym zamkniętym – możliwość wykończenia według własnego projektu

  • Doprowadzone media: prąd, woda, gaz

Dojazd i komunikacja:

  • Dojazd do działki 90 m drogą szutrową, następnie drogą asfaltową

  • W pobliżu przystanek autobusowy linii 101, ok. 150 m od domu

Wojciech – 531 790 133
Centrum Nieruchomości
ul. Sienkiewicza 44

Kalkulatory

Kalkulator kredytowy

Wysokość raty

PLN
%

Kalkulator kosztów

Podatek od czynności cywilno-prawnych

Taksa notarialna
(opłata notarialna)

Wniosek o wpis do WKW

VAT od prowizji
agencji nieruchomości

Vat od taksy notarialnej
(opłaty notarialnej)

Prowizja agencji nieruchomości

Wypisy aktu notarialnego

Razem

Uwaga: mogą wystąpić dodatkowe opłaty za założenie księgi wieczystej oraz ustanowienie hipoteki.

PLN
PLN
PLN
PLN
PLN
PLN
%
PLN

Doradca ds. nieruchomości (agent)

Proszę wprowadzić poprawne imię i nazwisko
Proszę wprowadzić poprawny numer telefonu
Proszę wprowadzić poprawny adres e-mail
Proszę zaznaczyć wymagane zgody
Rozwiąż równanie:
28 7
Niepoprawny wynik